第49東京ビル 3F

- (-/坪) 管理/共益費 -

東京都葛飾区新小岩1丁目42-8

総武線「新小岩」駅徒歩2分

総武本線「新小岩」駅徒歩2分

価格
-(-/坪) 管理/共益費 -
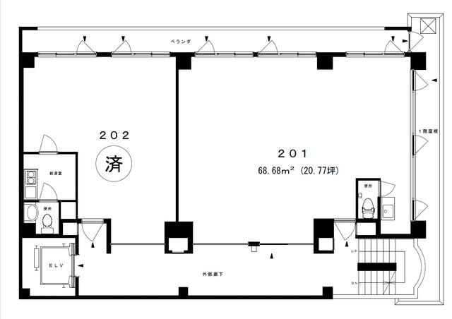
面積
-(-)
所在地
東京都葛飾区新小岩1丁目42-8
築年
1984年3月(築42年)
交通

総武線新小岩」駅 徒歩2分

総武本線新小岩」駅 徒歩2分

第49東京ビル 3Fの基本情報

物件名
第49東京ビル 3F
価格
-(-/坪)
管理/共益費
-
築年月
1984年3月(築42年)
所在地
東京都葛飾区新小岩1丁目42-8
交通

総武線新小岩」駅 徒歩2分

総武本線新小岩」駅 徒歩2分

第49東京ビル 3Fの詳細情報

設備条件
  • 商店街
  • 光ファイバー
  • 繁華街
取引態様
一般媒介

近隣の物件

  1. 葛飾区亀有3丁目

    - (68.68㎡)

    25.14万円(1.21万円/坪)

よく見られている物件

  1. 港区芝2丁目

    1R (17.58㎡)

    16.28万円

  2. 中央区銀座1丁目

    - (53.61㎡)

    75万円

  3. 港区麻布十番3丁目

    - (18.33㎡)

    18.15万円

  4. 中央区銀座5丁目

    - (246.38㎡)

    319.74万円

第49東京ビル 3F

お気軽にお問い合わせください

LINEからお問い合わせ 無料お問い合わせ

株式会社ELiSA -エライザ-

03-6403-0924

10:00-18:00

(休:不定休)