Webから予約

NEW

リオン セレーナ 201 201

19.8万円(2.23万円/坪)

管理 / 共益費 11,000円

東京都港区2丁目28-18

都営三田線「三田」駅徒歩7分

都営三田線「芝公園」駅徒歩9分

山手線「田町」駅徒歩10分

賃料 / 坪単価
19.8万円 / 2.23万円
敷金(保証金)
0ヶ月(5ヶ月)
間取り
1LDK
所在地
東京都港区2丁目28-18
交通

都営三田線三田」駅 徒歩7分

都営三田線芝公園」駅 徒歩9分

山手線田町」駅 徒歩10分

管理 / 共益費
11,000円
礼金
19.8万円
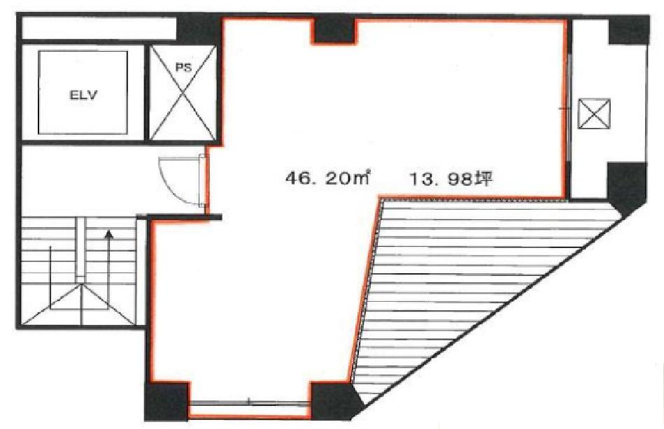
建物面積
8.88坪(29.38㎡)
築年月
2025年11月(新築)

セールスポイント

NG:民泊、ホテル業、サブリース、飲食 
ご相談可能:SOHO、予約制サロン

基本情報

保証金
5ヶ月
敷引 / 償却
- / 2ヶ月
間取り / 詳細
1LDK
建物面積
8.88坪(29.38㎡)
所在階 / 階建て
2階 / 5階建
建物構造
鉄骨造
築年月
2025年11月(新築)
種別
店舗事務所
契約期間
2年
保証会社 / 料金
必加入 / その他
月額総賃料の1ヶ月分(別途消費税)
現況
完成済み
入居可能時期
即時
取引条件の
有効期限
2026年03月15日

設備条件

設備条件
  • 事務所可 / サービスオフィス / SOHO向け / スケルトン渡し / 商店街 / 路面店 / 物販向け / 公営水道 / 公共下水 / 洗濯機置場有 / 光ファイバー / エステサロン向け / スタジオ向け / マッサージ・整体院向け / 角部屋

その他

賃貸区分
一般
更新料
1ヶ月(新賃料)
保険会社 / 料金
有  / -
取引態様
専属専任媒介
物件番号
100904274
情報更新日
2026年03月01日
次回更新予定日
2026年03月15日
取扱会社
  • 株式会社ELiSA -エライザ-
  • 東京都港区六本木3丁目4-33 マルマン六本木ビル3F
  • TEL:03-6403-0924
  • 東京都知事 (1) 第111483号
備考
・EVなし
・NG:民泊、ホテル業、サブリース、飲食、不特定多数の出入りがある業種
・ご相談可能:SOHO、予約制サロン

近隣の物件

  1. 南青山骨董通りユニオンビル

    港区南青山6丁目

    - (25.14㎡)

    22万円(2.89万円/坪)

  2. 麻布十番ミレニアムタワー 301

    港区麻布十番2丁目

    - (82.47㎡)

    82.33万円(3.3万円/坪)

  3. 麻布十番ミレニアムタワー 601

    港区麻布十番2丁目

    - (46.21㎡)

    46.14万円(3.3万円/坪)

  4. つゆきビル

    港区新橋6丁目

    17.15坪 (56.72㎡)

    25.3万円(1.48万円/坪)

よく見られている物件

  1. リオン セレーナ

    港区芝2丁目

    1R (17.58㎡)

    16.28万円

  2. GINZA ARROWS 9F 

    中央区銀座1丁目

    - (53.61㎡)

    75万円

  3. 十番コアビルⅡ 2F

    港区麻布十番3丁目

    - (18.33㎡)

    18.15万円

  4. ニューギンザ5ビル

    中央区銀座5丁目

    - (246.38㎡)

    319.74万円

リオン セレーナ 201

リオン セレーナ 201

19.8万円

11,000円

8.88坪(29.38㎡)

お気軽にお問い合わせください

LINEからお問い合わせ 無料お問い合わせ

株式会社ELiSA -エライザ-

03-6403-0924

10:00-18:00

(休:不定休)

Webから予約